Ваш регион:

Доставка и оплата

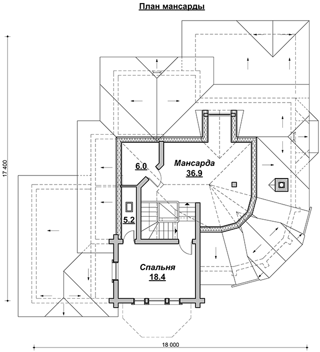
Проект квадратного двухэтажного дома из бруса в стиле барокко с мансардным этажом и одноместным гаражом, с площадью до 400 кв м PA-5

Добавить в избранное

Общая площадь: 393.4 м2
Габариты дома: 17.10 x 17.40 м
Этажность: 2+ Мансардный
Спальни: 4
Фундамент: буро-набивные сваи
Материал стен: клеёный брус
Перекрытия: цокольное - монолитный ж/б по профнастилу, 1, 2 этажи - дощатый настил по деревянным балкам
Крыша: мансардная (утеплённая)
Кровля: скатная с деревянными стропилами
Фасад: натуральный камень
Стиль: Барокко
Навес для 2 автомобилей нет
Гараж (4 места) нет
Кинотеатр нет
Навес для автомобиля нет
Подвал нет
Бильярдная нет
Библиотека нет
Беседка нет
Гараж (3 места) нет
Баня нет
Гараж (1 место) есть
Гараж (2 места) нет
Навес нет
Терраса на 1-м этаже есть
Терраса на 2-м этаже нет
Терраса на крыше нет
Веранда есть
Зимний сад нет
Второй свет есть
Бассейн нет
Сауна нет
Тренажерный зал нет
Эркер есть
Кабинет есть
Балкон есть
Большие окна есть
Элитный нет
Угловой нет
Для узкого участка нет
Квадратный есть
Погреб нет

Архитекрутный раздел

Архитектурный раздел проекта дома Архитектурный раздел проекта дома Архитектурный раздел проекта дома Архитектурный раздел проекта дома Архитектурный раздел проекта дома Архитектурный раздел проекта дома Архитектурный раздел проекта дома Архитектурный раздел проекта дома Архитектурный раздел проекта коттеджа Архитектурный раздел проекта коттеджа Архитектурный раздел проекта коттеджа Архитектурный раздел проекта коттеджа Архитектурный раздел проекта коттеджа Архитектурный раздел проекта коттеджа Архитектурный раздел проекта коттеджа Архитектурный раздел проекта коттеджа Архитектурный раздел проекта коттеджа Архитектурный раздел проекта коттеджа Архитектурный раздел проекта коттеджа Архитектурный раздел проекта коттеджа Архитектурный раздел проекта коттеджа Архитектурный раздел проекта коттеджа Архитектурный раздел проекта коттеджа Архитектурный раздел проекта коттеджа



Конструктивный раздел

Конструктивный раздел проекта коттеджа Конструктивный раздел проекта коттеджа Конструктивный раздел проекта коттеджа Конструктивный раздел проекта коттеджа Конструктивный раздел проекта коттеджа Конструктивный раздел проекта коттеджа Конструктивный раздел проекта коттеджа Конструктивный раздел проекта коттеджа Конструктивный раздел проекта коттеджа Конструктивный раздел проекта дома Конструктивный раздел проекта дома Конструктивный раздел проекта дома Конструктивный раздел проекта дома Конструктивный раздел проекта дома Конструктивный раздел проекта дома Конструктивный раздел проекта дома

Варианты оплаты

  • Безналичный расчет на р/с компании
  • Перевод на карту Сбербанка РФ (выписывается приходный кассовый ордер)
  • Наличный расчет в офисе компании (выписывается приходный кассовый ордер)

Если проект приобретается без изменений, то оплата производится в размере 100% стоимости проекта.

Если проект приобретается с изменениями, то оплата производится в размере 100% стоимости проекта и первого авансового платежа за эскизное решение, которое составляет 50% от общей стоимости всех вносимых изменений в проект. Оставшийся второй авансовый платеж в размере 50% вносится после согласования с вами эскизного решения. После оплаты второго авансового платежа и согласования эскиза мы приступаем к проработке архитектурно-строительной документации. Срок подготовки документации 15 рабочих дней с момента оплаты второго авансового платежа. Данный срок может быть уменьшен или увеличен, в зависимости от сезонности.

Пример:
Если проект стоит 30.000 руб, а стоимость его доработок оценена в 10.000 руб, то ваш первый авансовый платеж составит 35.000 руб.

Доставка

Хотите изменить проект? Узнать стоимость
с доработками

Что может быть изменено?

  • Конструкция фундамента (необходим отчет о инженерно-геологических изысканиях)
  • Внешние габариты
  • Планировочные решения
  • Размеры и расположение окон, дверей и проемов
  • Уклон кровли и навесов
  • Высота потолков
  • Тип перекрытий
  • Материал стен, кровли и фасада
  • Добавление/удаление цокольного этажа или подвального
  • Добавление/удаление гаража, террас, крылец, бассейнов, саун, эркеров и пр.

Рекомендации проектов близких по площади

Популярный

PA-19

414.8 м2

Эт.: 2+Ц  | 
Спален: 4

Габариты: 13.48 х 11.40 м

45.000 руб. Купить проект
Добавить в избранное
Популярный

PA-25

393.2 м2

Эт.: 3+Ц  | 
Спален: 4

Габариты: 22.34 х 14.40 м

80.000 руб. Купить проект
Добавить в избранное
Популярный

PA-26

393.2 м2

Эт.: 3+Ц  | 
Спален: 4

Габариты: 13.64 х 14.40 м

60.000 руб. Купить проект
Добавить в избранное
Популярный

PA-29

422.2 м2

Эт.: 2  | 
Спален: 4

Габариты: 13.78 х 13.20 м

85.000 руб. Купить проект
Добавить в избранное
Популярный

PA-36

397.2 м2

Эт.: 4+М+Ц  | 
Спален: 3

Габариты: 14.84 х 19.10 м

45.000 руб. Купить проект
Добавить в избранное
Популярный

PA-37

381.2 м2

Эт.: 3+М  | 
Спален: 4

Габариты: 9.74 х 17.38 м

49.000 руб. Купить проект
Добавить в избранное

Опции: